Reklama
James Hardie - gigant - 19.11.2025
product bg image
Kasety chowane w ścianę
Adriana Rode
Adriana RodeKierownik działu sprzedaży
Napisz do producenta

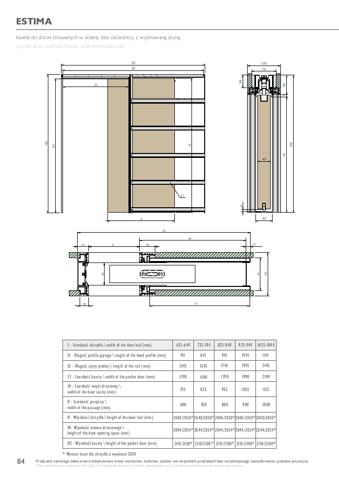
Gustavson Estima - bezościeżnicowa kaseta do drzwi chowanych w ścianę 100 mm pojedyncza

Opis produktuDane techniczneDokumentacja

Warianty produktu

Brak wyników dla podanych kryteriów

Zaczekaj, mamy tego więcej

Gustavson Estima - bezościeżnicowa kaseta do drzwi chowanych w ścianę 100 mm pojedyncza