
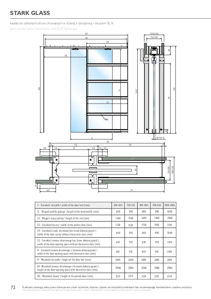
Gustavson Stark Glass - cassette for retractable doors 100/125 mm for glass double
Product descriptionTechnical dataDocumentation
Product variants
No results for the given criteria
Wait, we have more of that
Gustavson Stark Glass - cassette for retractable doors 100/125 mm for glass double
Gallery
14.2_ESTIMA_GLASS_2SK_glamour
Gustavson Stark
Gustavson Stark
Gustavson Stark
Gustavson Stark
Gustavson Stark








