
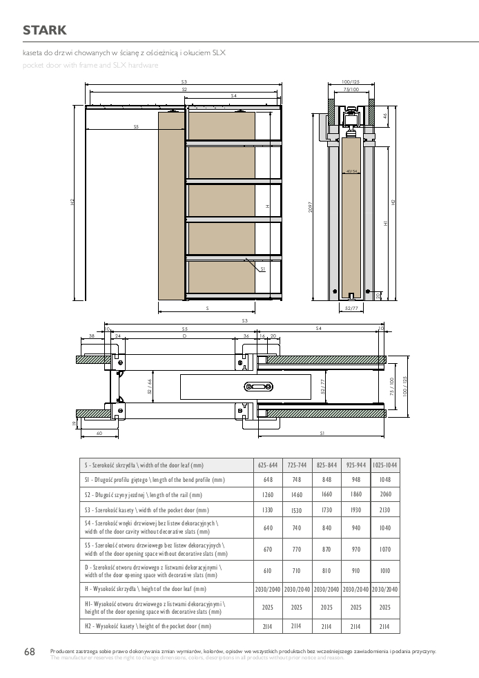
Gustavson Stark – kaseta do drzwi chowanych w ścianę 100/125 mm podwójna
Opis produktuDane techniczneDokumentacja






Warianty produktu
Brak wyników dla podanych kryteriów
Zaczekaj, mamy tego więcej
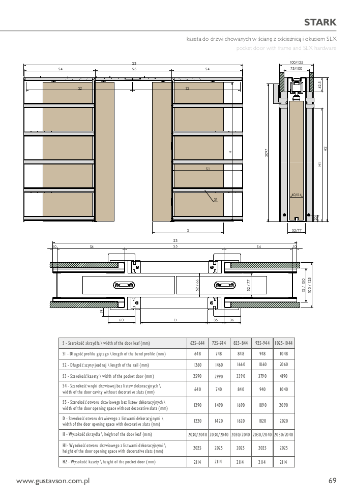
Gustavson Stark – kaseta do drzwi chowanych w ścianę 100/125 mm podwójna
Galeria
Gustavson Stark
Gustavson Stark
Gustavson Stark
Gustavson Stark
Gustavson Stark








