
PRZEGRODY BALKONOWE BSP
Obecnie w budownictwie mieszkaniowym bardzo często uwzględnia się ciągłe balkony rozdzielone pomiędzy poszczególnymi lokalami za pomocą przegród balkonowych. Istnieje szereg rozwiązań z wykorzystaniem produktów BSP. Poniżej prezentujemy trzy najczęściej stosowane w projektach rozwiązania.
1. Konstrukcja przegrody mocowana góra-dół, z wykorzystaniem profili aluminiowych KWR6
W przypadku, gdy mamy możliwość zamocowania się do płyty balkonowej górnej i dolnej, możemy wykorzystać profile KWR6 (szczegółowy opis profili na str. …) jako konstrukcję przegrody. Profile te mocowane są do poziomych profili aluminiowych prostokątnych, które z kolei zamocowane są do płyty balkonowej za pomocą prętów gwintowanych, zakotwionych chemicznie. Pręty przebijające warstwy podłogowe są stosunkowo łatwe do wyklejenia izolacją. Zaletą tego rozwiązania jest wykorzystanie samych aluminiowych elementów konstrukcyjnych, które są łatwe w obróbce oraz transporcie. Konstrukcja jest obustronnie obkładana okładziną, przez co jest praktycznie niewidoczna.
2. Konstrukcja przegrody mocowana bok-dół (lub bok-góra), z wykorzystaniem ramy stalowej oraz profili RW typu Omega
Jeżeli nie mamy możliwości zamocowania się do górnej płyty balkonowej (np. na ostatniej kondygnacji) lub mamy możliwość zamocowania się do górnej płyty balkonowej, ale brak jest pozwolenia na zamocowanie do dolnej płyty balkonowej i przebicie warstw izolacyjnych, wykorzystujemy mocowanie do ściany bocznej. W tym przypadku jednak, z uwagi na mniej korzystny układ statyczny, stosujemy sztywniejszą konstrukcję w postaci indywidualnie zaprojektowanej ramy stalowej. Do ramy mocujemy pionowe profile RW typu Omega (szczegółowy opis profili na str. …), regulując podkładkami i wyprowadzając przy tym równą płaszczyznę. Podobnie jak w pierwszym przypadku, konstrukcja jest obustronnie obkładana okładziną, przez co jest praktycznie niewidoczna.
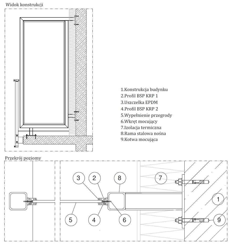
3. Przegroda z wypełnieniem płytą dwustronną, z wykorzystaniem profili KRP
Niezależnie od możliwości zamocowania góra-bok-dół, przegrodę możemy zaprojektować jako cienką konstrukcję z wypełnieniem płytowym, jednowarstwowym. W tym celu wykorzystujemy indywidualnie zaprojektowaną ramę nośną do której mocujemy profile KRP (szczegółowy opis profili na str. …). Wypełnienie, jakim może być płyta HPL, szkło lub inny materiał, mocuje się w profilach KRP na zasadzie zatrzasku. W tym przypadku płyta wypełniająca przegrodę musi być dwustronna a konstrukcja przegrody jest widoczna, więc zaleca się jej polakierowanie na wybrany kolor. Zaletą takiego rozwiązania przegrody jest jej mała grubość oraz stosunkowo niski koszt.
https://www.bspsystem.com/produkty/pozostale-elementy/przegrody-balkonowe/listwa-krp/
Warianty produktu
Brak wyników dla podanych kryteriów
REALIZACJE
Przegroda BSP - płyta HPL
Przegrody szafy - płyta HPL
Przegroda BSP - na profilach KWR6
Warszawa Artystyczny Żoliborz kolejny etap
Warszawa Artystyczny Żoliborz
Przegroda BSP - płyta HPL
Warszawa Artystyczny Żoliborz kolejny etap
Warszawa Artystyczny Żoliborz kolejny etap
Warszawa Artystyczny Żoliborz
Warszawa Artystyczny Żoliborz
Przegroda BSP - płyta HPL
Przegroda BSP - płyta HPL
Warszawa Artystyczny Żoliborz kolejny etap
Przegroda BSP - profile KWR6
Przegroda BSP - płyta HPL
Warszawa Artystyczny Żoliborz kolejny etap
DETALE TECHNICZNE
Przegrody balkonowe - detale z profilem KWR6
Przegrody balkonowe BSP - detale rama stalowa oraz profil RW typu Omega
Przegrody Balkonowe BSP - detale płyta dwustronna z profil KRP





