
SYSTEM STANDARDOWY PODKONSTRUKCJI BSP KW
SYSTEM PODKONSTRUKCJI BSP KW - Opis techniczny
1. SYSTEM
System podkonstrukcji BSP KW jest standardowym oraz uniwersalnym systemem podkonstrukcji do mocowania wielu różnych okładzin na elewacji zewnętrznej oraz wewnętrznej w technologii elewacji wentylowanej. System składa się z konsol aluminiowych BSP KW1 oraz pionowych profili aluminiowych, najczęściej BSP KWR1 i KWR2. Wszystkie elementy systemu BSP KW są produkowane z tłoczonego aluminium stopu EN AW 6060 T66 lub EN AW 6063 T6.
2. KONSOLE
Grubość konsol aluminiowych BSP KW1 wynosi od 3 do 4 mm w zależności od ich długości. Ich długość natomiast jest zależna od wysięgu elewacji i jest każdorazowo dobierana na podstawie dokumentacji projektowej. Wysokość natomiast zależy od funkcji, jaką pełni konsola. Konsole stałe – przenoszące pionowe obciążenia od ciężaru elewacji na konstrukcję budynku – występują standardowo w wysokości 150 mm lub 120 mm. Konsole przesuwne – przenoszące jedynie poziome obciążenie od ssania i parcia wiatru – występują standardowo w wysokości 60 mm lub 90 mm. Konsole posiadają specjalnie zaprojektowaną kieszonkę o gr. 1,5 mm w znacznym stopniu ułatwiającą mocowanie profili oraz ustawianie ich płaszczyzny. Otwory w konsolach do mocowania profili zapewniają możliwość ich swobodnej rozszerzalności termicznej. Do mocowania konsol do konstrukcji budynku stosuje się elementy kotwiące dobrane na podstawie obliczeń statycznych. Pod konsole stosuje się specjalne podkładki systemowy BSP HDPE (alternatywnie EPDM lub PCV) w celu uniknięcia korozji na styku aluminium z podłożem oraz w celu uzyskania lepszych parametrów termoizolacyjnych.
3. PROFILE
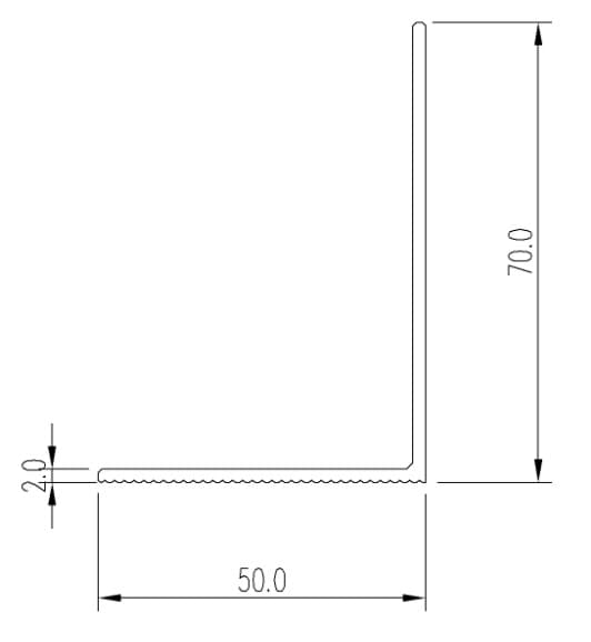
Profile aluminiowe BSP KWR1 są profilami teowymi stosowanymi na łączeniu paneli elewacyjnych. Profile aluminiowe BSP KWR2 są natomiast profilami kątowymi stosowanymi jako profile wsporcze w środkowej części paneli. Grubość nóżki profili wynosi 2 mm. Szerokość nóżki 70 mm zapewnia dużą sztywność profili umożliwiającą ich mocowanie w dużym rozstawie. Profile kątowe posiadają ściankę przednią o szerokości 50 mm. Profile teowe natomiast posiadają ściankę przednią o szerokości 120 mm, co zapewnia stosunkowo dużą regulację poziomą na łączeniu płyt oraz umożliwia mocowanie płyt, w których należy zachować dużą odległość mocowania od krawędzi (<45 mm). Powierzchnia przednich ścianek profili jest ryflowana, co zapewnia większą powierzchnię klejenia płyt. Profile mocuje się do konsol za pomocą wkrętów samowiercących 4,8x19 A2.
4. OGÓLNE
Wszystkie elementy podkonstrukcji aluminiowej BSP charakteryzują się klasą trwałości B wg normy PN-EN 1999-1-1:2011 i mogą bez powłok ochronnych być stosowane w środowiskach o kategorii korozyjności atmosfery C1, C2 oraz C3 wg normy PN-EN ISO 12944-2:2001. Po przeprowadzeniu dodatkowego zabiegu ochronnego – anodowaniu – mogą być również stosowane w środowisku o kategorii korozyjności atmosfery C4 oraz C5. Aluminiowe elementy podkonstrukcji BSP są klasyfikowane w zakresie reakcji na ogień bez badań w klasie A1 wg normy PN-EN 13501-1+A1:2010 na podstawie decyzji Komisji Europejskiej nr 96/603/EC, 2000/605/EC oraz 2003/424/WE. System podkonstrukcji BSP KW jest objęty Krajową Oceną Techniczną oraz Krajową Deklaracją Właściwości Użytkowych. Posiada również pozytywną opinię ITB dotyczącą paragrafu 225 Rozporządzenia Ministra Infrastruktury w sprawie warunków technicznych, jakim powinny odpowiadać budynki i ich usytuowanie.
System podkonstrukcji BSP KW powinien być montowany na podstawie projektu warsztatowego sporządzonego przez projektantów z odpowiednią wiedzą w dziedzinie konstrukcyjno-budowlanej. Układ podkonstrukcji oraz zagęszczenie elementów (wytrzymałość całego systemu) powinno być potwierdzone obliczeniami statycznymi sporządzonymi przez konstruktora z uprawnieniami w dziedzinie konstrukcyjno-budowlanej.
Typy paneli dostępne dla tego systemu:
- Beton architektoniczny
- Gres
- HPL
- Kamień
- Kasety stalowe
- Kompozyt aluminiowy – kasety
- Kompozyt aluminiowy – panele płaskie
- Rockpanel
- Spiek kwarcowy
- Szkło
- Włókno-cement
Wymiary konsol
| Nazwa | A: WYSIĘG | B: WYSOKOŚĆ |
| Konsola BSP Typ KW1 42-60 fix | 42 | 60 |
Konsola BSP Typ KW1 42-90 fix | 42 | 90 |
Konsola BSP Typ KW1 42-120 fix | 42 | 120 |
Konsola BSP Typ KW1 42-150 fix | 42 | 150 |
Konsola BSP Typ KW1 60-60 fix | 60 | 60 |
Konsola BSP Typ KW1 60-90 fix | 60 | 90 |
Konsola BSP Typ KW1 60-120 fix | 60 | 120 |
Konsola BSP Typ KW1 60-150 fix | 60 | 150 |
Konsola BSP Typ KW1 80-60 fix | 80 | 60 |
Konsola BSP Typ KW1 80-90 fix | 80 | 90 |
Konsola BSP Typ KW1 80-120 fix | 80 | 120 |
Konsola BSP Typ KW1 80-150 fix | 80 | 150 |
Konsola BSP Typ KW1 100-60 fix | 100 | 60 |
Konsola BSP Typ KW1 100-90 fix | 100 | 90 |
Konsola BSP Typ KW1 100-120 fix | 100 | 120 |
Konsola BSP Typ KW1 100-150 fix | 100 | 150 |
Konsola BSP Typ KW1 120-60 fix | 120 | 60 |
Konsola BSP Typ KW1 120-90 fix | 120 | 90 |
Konsola BSP Typ KW1 120-120 fix | 120 | 120 |
Konsola BSP Typ KW1 120-150 fix | 120 | 150 |
Konsola BSP Typ KW1 140-60 fix | 140 | 60 |
Konsola BSP Typ KW1 140-90 fix | 140 | 90 |
Konsola BSP Typ KW1 140-120 fix | 140 | 120 |
Konsola BSP Typ KW1 140-150 fix | 140 | 150 |
Konsola BSP Typ KW1 170-60 fix | 170 | 60 |
Konsola BSP Typ KW1 170-90 fix | 170 | 90 |
Konsola BSP Typ KW1 170-120 fix | 170 | 120 |
Konsola BSP Typ KW1 170-150 fix | 170 | 150 |
Konsola BSP Typ KW1 210-60 fix | 210 | 60 |
Konsola BSP Typ KW1 210-90 fix | 210 | 90 |
Konsola BSP Typ KW1 210-120 fix | 210 | 120 |
Konsola BSP Typ KW1 210-150 fix | 210 | 150 |
Konsola BSP Typ KW1 260-60 fix | 260 | 60 |
Konsola BSP Typ KW1 260-90 fix | 260 | 90 |
Konsola BSP Typ KW1 260-120 fix | 260 | 120 |
Konsola BSP Typ KW1 260-150 fix | 260 | 150 |
Konsola BSP Typ KW1 310-60 fix | 310 | 60 |
Konsola BSP Typ KW1 310-90 fix | 310 | 90 |
Konsola BSP Typ KW1 310-120 fix | 310 | 120 |
Warianty produktu
Brak wyników dla podanych kryteriów
Zaczekaj, mamy tego więcej
DETALE TECHNICZNE
SYSTEM PODSTAWOWY ELEWACJI WENTYLOWANEJ BSP KW
KONSOLA BSP KW1
PROFIL BSP KWR1
PROFIL BSP KWR1
PROFIL BSP KWR2
STANDARDOWY SYSTEM PODKONSTRUKCJI DLA ELEWACJI WENTYLOWANEJ BSP KW - PRZYKŁADY ZASTOSOWAŃ
PROFIL BSP KWR2
REALIZACJE
CENT W WARSZAWIE - system BSP KW
MUZEUM SZTUKI WSPÓŁCZECNEJ MOCAK W WARSZAWIE - system BSP KWRW I KW
HALA WEJHEROWO - system BSP FTF i KW
CENT W WARSZAWIE - system BSP KW
SIEDZIBA PIVEXIN TECHNOLOGY BABICE - system BSP KW
CENT W WARSZAWIE - system BSP KW
SIEDZIBA PIVEXIN TECHNOLOGY BABICE - system BSP KW
SIEDZIBA PIVEXIN TECHNOLOGY BABICE - system BSP KW
HALA WEJHEROWO - system BSP FTF i KW
PARK WODNY TYCHY - system BSP KW
HANDLOWE FERIO W WARSZAWIE - system BSP KW
HANDLOWE FERIO W WARSZAWIE - system BSP KW
CENTRUM HANDLOWE JANKI - system BSP KW
CENTRUM HANDLOWE JANKI - system BSP KW
MUZEUM SZTUKI WSPÓŁCZECNEJ MOCAK W WARSZAWIE - system BSP KWRW I KW
CENT W WARSZAWIE - system BSP KW
SIEDZIBA PIVEXIN TECHNOLOGY BABICE - system BSP KW
CENT W WARSZAWIE - system BSP KW
SIEDZIBA PIVEXIN TECHNOLOGY BABICE - system BSP KW
CENTRUM HANDLOWE JANKI - system BSP KW
CENTRUM HANDLOWE FERIO W WARSZAWIE - system BSP KW
HALA WEJHEROWO - system BSP FTF i KW
POLITECHNIKA WROCŁAWSKA - system BSP KW
HALA WEJHEROWO - system BSP FTF i KW
HANDLOWE FERIO W WARSZAWIE - system BSP KW
CENTRUM HANDLOWE JANKI - system BSP KW
Poznań Salon Harley Davidson
HANDLOWE FERIO W WARSZAWIE - system BSP KW
BIUROWIEC NOWA FABRYCZNA W ŁODZI - system BSP KW
CENT W WARSZAWIE - system BSP KW
BIUROWIEC NOWA FABRYCZNA W ŁODZI - system BSP KW
MUZEUM SZTUKI WSPÓŁCZECNEJ MOCAK W WARSZAWIE - system BSP KWRW I KW
BIUROWIEC NOWA FABRYCZNA W ŁODZI - system BSP KW
CENTRUM HANDLOWE JANKI - system BSP KW
MUZEUM SZTUKI WSPÓŁCZECNEJ MOCAK W WARSZAWIE - system BSP KWRW I KW
MUZEUM SZTUKI WSPÓŁCZECNEJ MOCAK W WARSZAWIE - system BSP KWRW I KW
CENTRUM HANDLOWE JANKI - system BSP KW
PARK WODNY TYCHY - system BSP KW
HALA WEJHEROWO - system BSP FTF i KW
POLITECHNIKA WROCŁAWSKA - system BSP KW
Poznań Salon Harley Davidson
POLITECHNIKA WROCŁAWSKA - system BSP KW
MUZEUM SZTUKI WSPÓŁCZECNEJ MOCAK W WARSZAWIE - system BSP KWRW I KW
POLITECHNIKA WROCŁAWSKA - system BSP KW
PARK WODNY TYCHY - system BSP KW
HALA WEJHEROWO - system BSP FTF i KW
CENT W WARSZAWIE - system BSP KW








