
/Okna
System aluminiowy okienno-drzwiowy AC - 62
Opis produktuDane techniczneDokumentacja
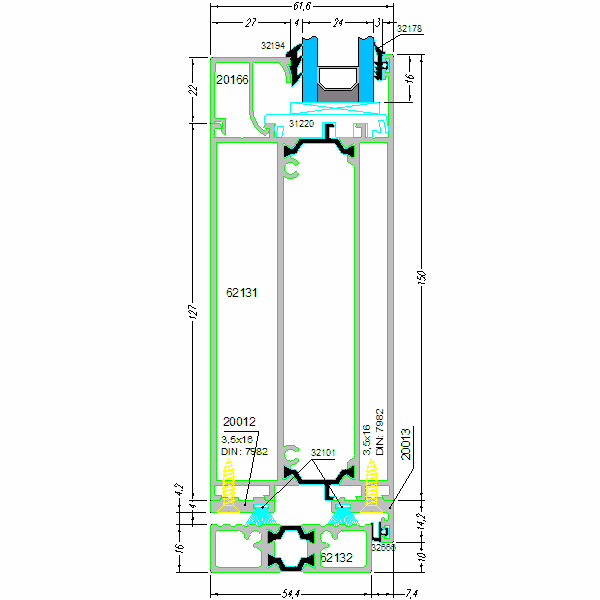
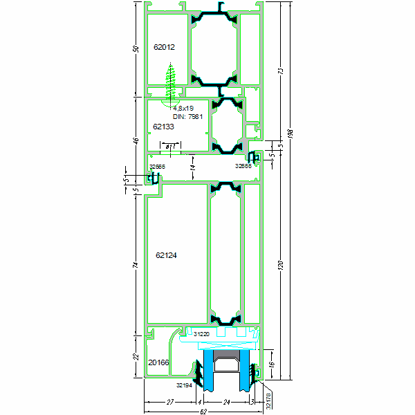
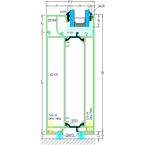
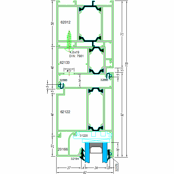
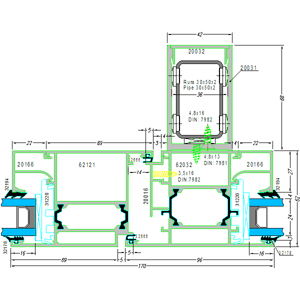
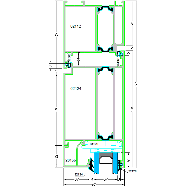
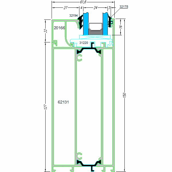
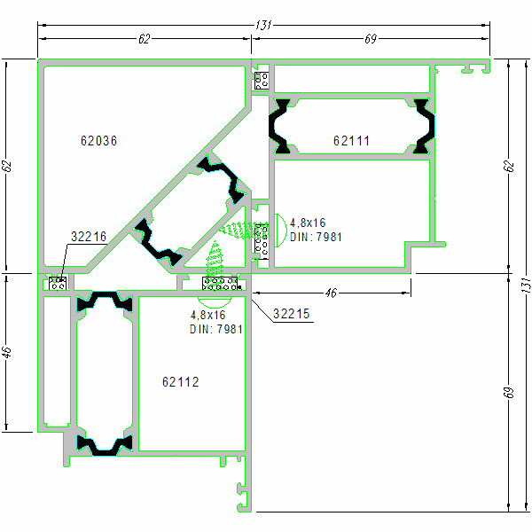
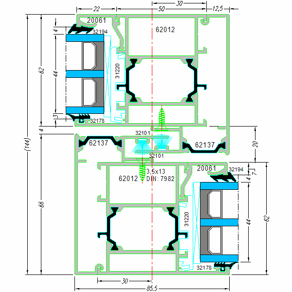
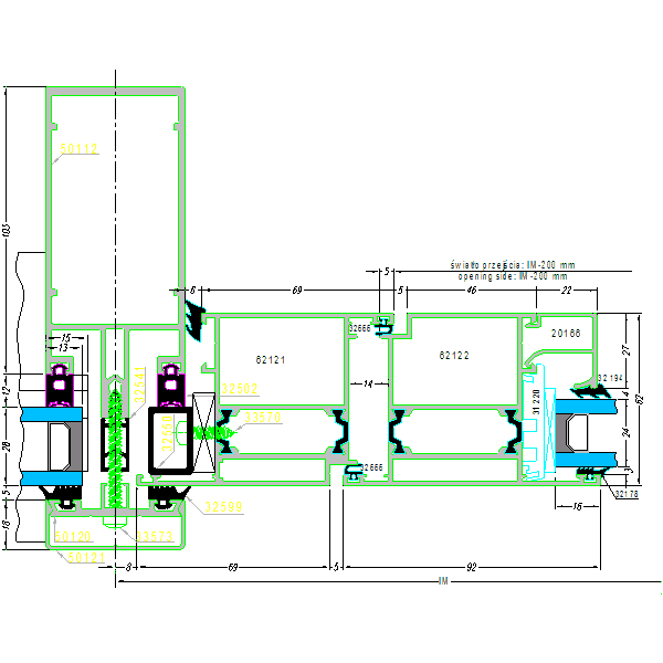
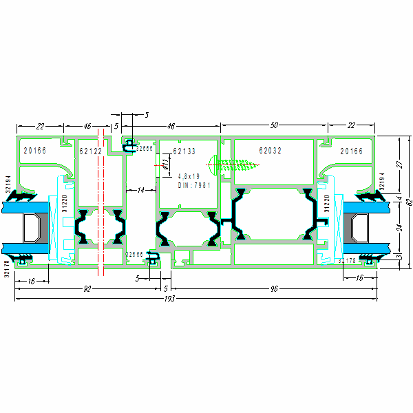
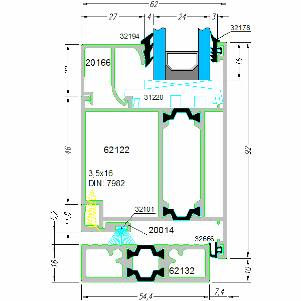
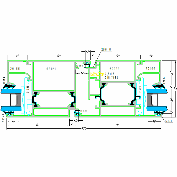
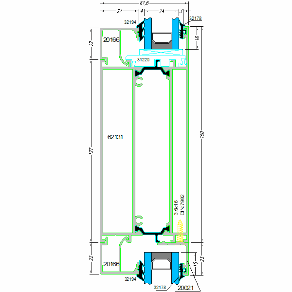
SYSTEM AC-62
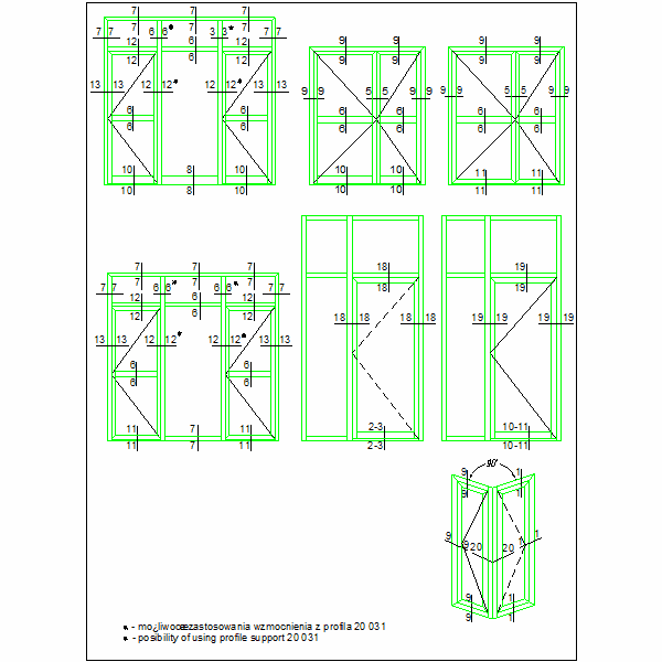
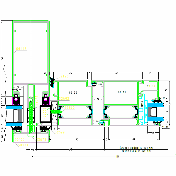
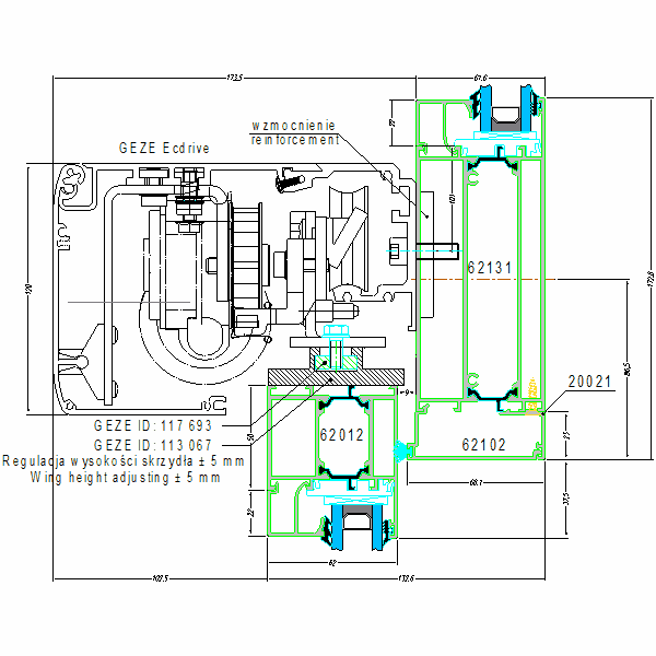
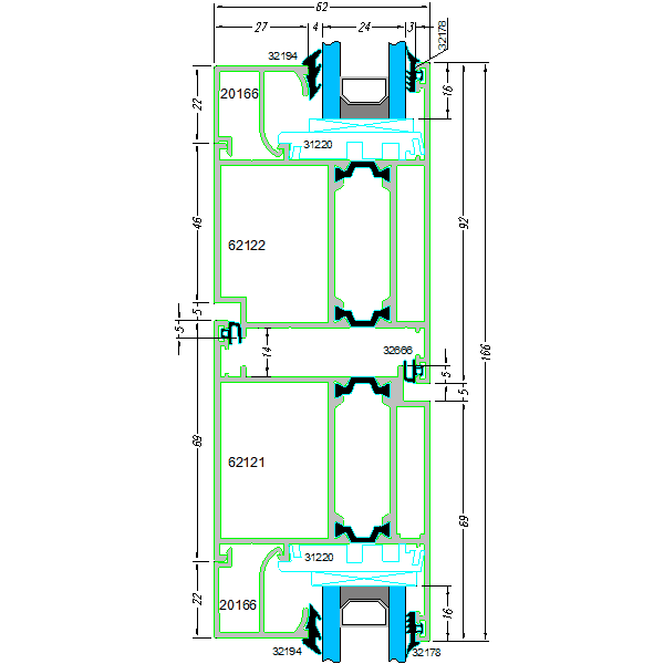
System izolowany przeznaczony do wykonywania zabudowy zewnętrznej: okiennej, drzwiowej, witrynowej. Możliwe jest wykonywanie drzwi przesuwnych, harmonijkowych i automatycznych, okien otwieranych zarówno do wewnątrz jak i na zewnątrz a także obrotowych i konstrukcje gięte. Dwa profile aluminiowe połączone zostały przekładką termiczną tworząc profil o szerokości ramy 62mm i 70 mm skrzydła okiennego. Szerokość profili i ich budowa zapewnia bardzo dobre parametry wytrzymałościowe i termiczne przy zachowaniu niskiej ceny systemu. Profile tłoczone są ze stopu EN AW-6060 wg PN-EN 573-3:2009. Tolerancje wymiarów i kształtu są zgodne z normą PN-EN 12020-2:2001.
Warianty produktu
Brak wyników dla podanych kryteriów








