
System aluminiowy okienno-drzwiowy AC - 77HI
AC-77HI
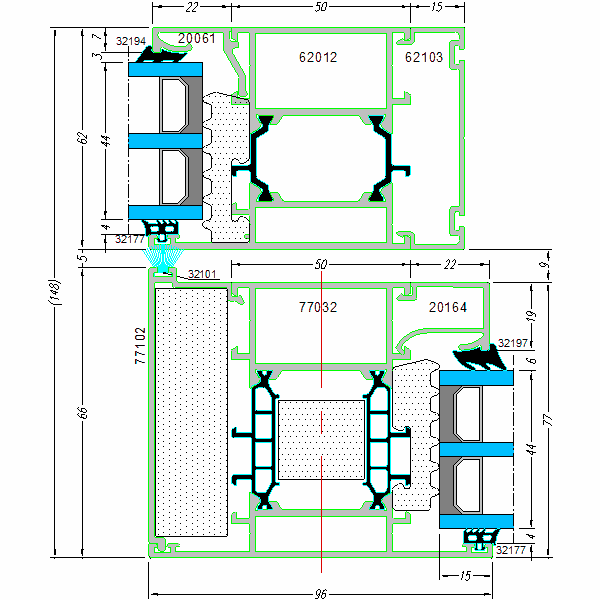
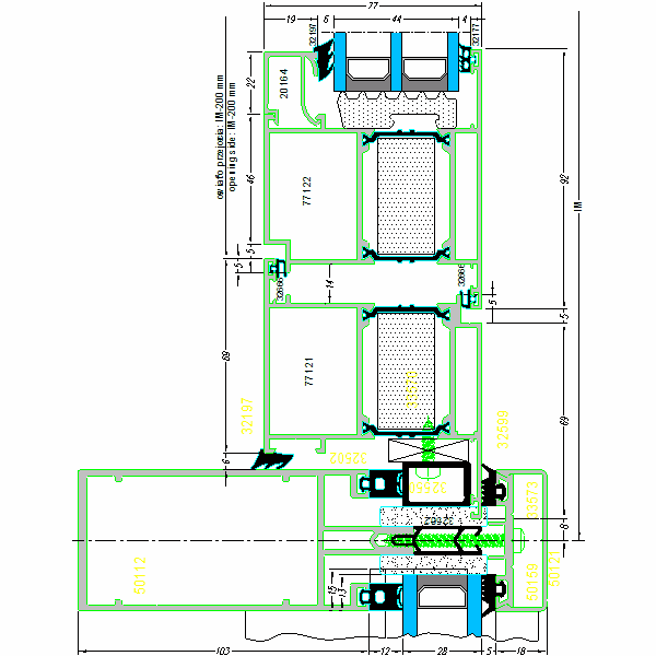
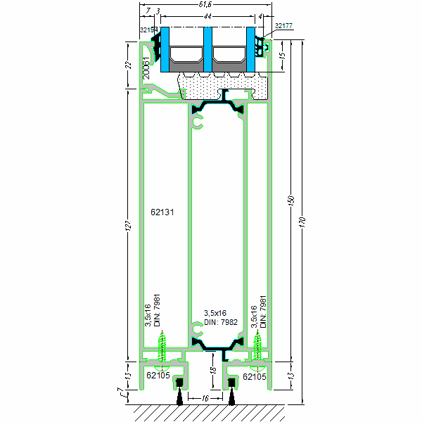
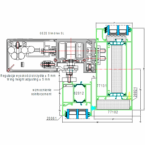
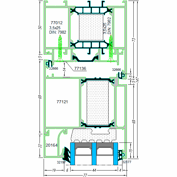
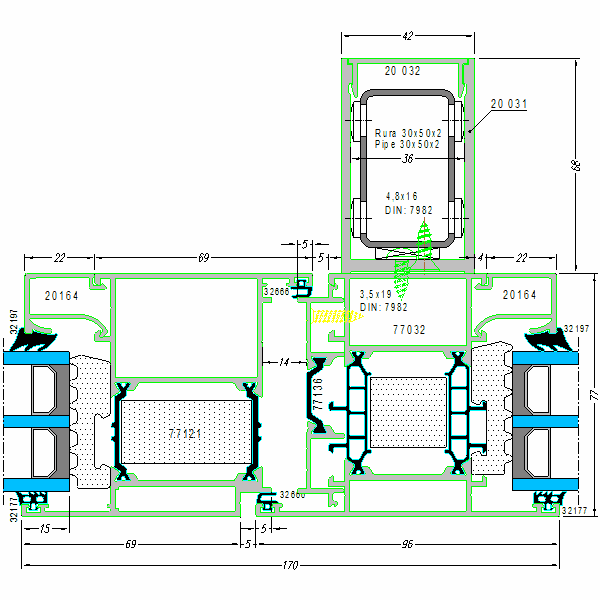
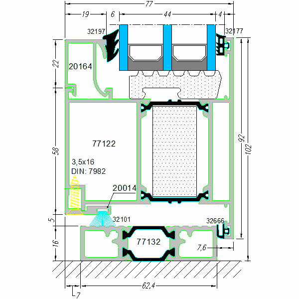
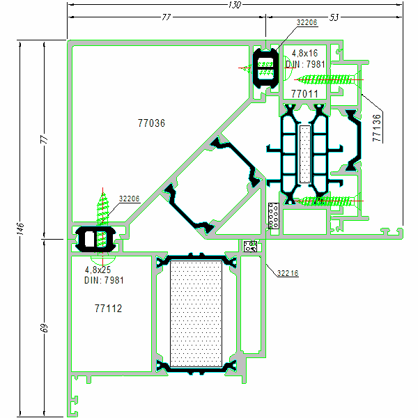
System przeznaczony do wykonywania zabudowy zewnętrznej wymagającej szczególnie wysokich parametrów izolacyjności cieplnej. Możliwe jest wykonywanie okien i witryn, drzwi przesuwnych, harmonijkowych i automatycznych, a także konstrukcji giętych. Wysoka izolacyjność cieplna profili zapewniona jest dzięki zwiększonej głębokości profili, która wynosi 85 mm dla skrzydeł okiennych i 77 mm dla pozostałych kształtowników, wielokomorowej budowie przekładek termicznych, która zapewnia również większą sztywność profilu, wielokomorowej budowie uszczelek dwu komponentowych wykonanych z EPDM. Profile tłoczone są ze stopu EN AW-6060 wg PN-EN 573-3:2009. Tolerancje wymiarów i kształtu są zgodne z normą PN-EN 12020-2:2001.
Warianty produktu
Brak wyników dla podanych kryteriów
.png&w=3840&q=75)







