
SYSTEM ZACZEPOWY PODKONSTRUKCJI BSP KWRW
SYSTEM PODKONSTRUKCJI ZACZEPOWEJ BSP KWRW - Opis techniczny
1. SYSTEM
System podkonstrukcji zaczepowej BSP KWRW jest systemem mechanicznego niewidocznego mocowania paneli na elewacji zewnętrznej oraz wewnętrznej w technologii elewacji wentylowanej. System składa się z konsol aluminiowych BSP KW1 (alternatywnie konsol pasywnych BSP KW1 PAS lub KW4 PAS), profili aluminiowych pionowych, najczęściej BSP KWR1 i KWR2, profili zaczepowych poziomych BSP KWRW oraz aluminiowych zaczepów punktowych BSP KWRW. Wszystkie aluminiowe elementy systemu BSP KWRW są produkowane z tłoczonego aluminium stopu EN AW 6060 T66 lub EN AW 6063 T6.
2. KONSOLE
Konsole BSP KW1 są w całości produkowane z aluminium. Grubość konsol wynosi 4 mm, co sprawia, że konsole cechują się dużą wytrzymałością. Konsole posiadają pozytywną opinię ITB dotyczącą paragrafu 225 Rozporządzenia Ministra Infrastruktury w sprawie warunków technicznych, jakim powinny odpowiadać budynki i ich usytuowanie.
Alternatywnie stosowane konsole pasywne BSP KW1 PAS oraz KW4 PAS zostały zaprojektowane z myślą o zaostrzających się przepisach dotyczących parametrów izolacyjności termicznej przegród zewnętrznych. Specjalnie zaprojektowany kształt konsol oraz odpowiednio dobrane materiały, z których są one produkowane, pozwalają na uzyskanie stosunkowo dużej nośności przy jednoczesnym zachowaniu bardzo korzystnych parametrów izolacyjnych. Dzięki zastosowaniu konsol pasywnych BSP można znacznie zniwelować efekt „mostków cieplnych” na elewacji zewnętrznej w warstwie termoizolacji.
Konsola pasywna KW1 PAS składa się z elementów aluminiowych oraz płaskiej przekładki termoizolacyjnej. Grubość ścianki aluminiowej podstawy konsoli wynosi 3 – 4 mm w zależności od wysięgu. Grubość ścianki aluminiowej końcówki natomiast wynosi 3 mm. Przekładka termoizolacyjna produkowana jest z laminatu epoksydowo-szklanego o współczynniku przewodności cieplnej λ=0,36 W/(m*K). Przekładka jest mocowana do aluminiowych elementów za pomocą nitów ze stali nierdzewnej. Dzięki korzystnym parametrom termoizolacyjnym przekładki konsola ta jest doskonałym wyrobem stosowanym w budownictwie energooszczędnym, co potwierdza certyfikat uzyskany od instytutu Passive House w Darmstadt. Konsola jest sklasyfikowana jako nie rozprzestrzeniająca ognia przy działaniu ognia od zewnątrz. W zakresie reakcji na ogień posiada klasę B-s3,d0. Posiada również pozytywną opinię ITB dotyczącą paragrafu 225 Rozporządzenia Ministra Infrastruktury w sprawie warunków technicznych, jakim powinny odpowiadać budynki i ich usytuowanie, jak również stosowania powyżej 25 m. oraz w pasach oddzielenia pożarowego.
Konsola KW4 PAS złożona jest z elementów aluminiowych oraz przekładki komorowej z tworzywa sztucznego o bardzo dobrych parametrach termoizolacyjnych. Komory przekładki mieszczą się w warstwie wełny termoizolacyjnej tworząc niewentylowaną przestrzeń powietrzną, co również wpływa korzystnie na izolacyjność termiczną. Przekładka jest zaciskana w gniazdach elementów aluminiowych i tym samym połączona z nimi w sposób trwały. Konsola jest sklasyfikowana jako nie rozprzestrzeniająca ognia przy działaniu ognia od zewnątrz. W zakresie reakcji na ogień posiada klasę B-s3,d0. Posiada również pozytywną opinię ITB dotyczącą paragrafu 225 Rozporządzenia Ministra Infrastruktury w sprawie warunków technicznych, jakim powinny odpowiadać budynki i ich usytuowanie, jak również stosowania powyżej 25 m. oraz w pasach oddzielenia pożarowego.
Długość wszystkich konsol jest zależna od wysięgu elewacji i jest każdorazowo dobierana na podstawie dokumentacji projektowej. Wysokość natomiast zależy od funkcji, jaką pełni konsola. Konsole stałe – przenoszące pionowe obciążenia od ciężaru elewacji na konstrukcję budynku – występują standardowo w wysokości 150 mm lub 120 mm. Konsole przesuwne – przenoszące jedynie poziome obciążenie od ssania i parcia wiatru – występują standardowo w wysokości 60 mm lub 90 mm. Konsole posiadają specjalnie zaprojektowaną kieszonkę, w znacznym stopniu ułatwiającą mocowanie profili oraz ustalanie ich płaszczyzny. Otwory w konsolach do mocowania profili zapewniają możliwość ich swobodnej rozszerzalności termicznej. Do mocowania konsol do konstrukcji budynku stosuje się elementy kotwiące dobrane na podstawie obliczeń statycznych. Pod konsole stosuje się specjalne podkładki systemowy BSP HDPE (alternatywnie EPDM lub PCV) w celu uniknięcia korozji na styku aluminium z podłożem oraz w celu uzyskania lepszych parametrów termoizolacyjnych.
3. PROFILE
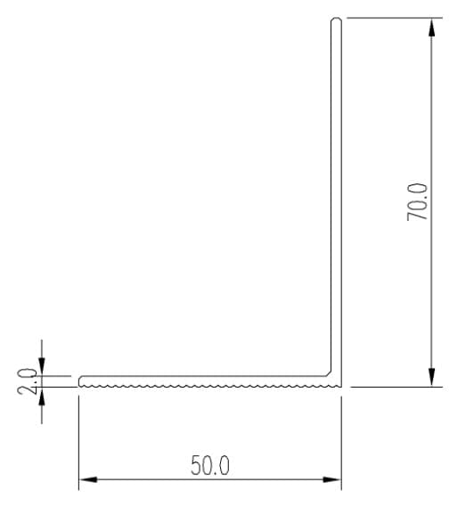
Profile aluminiowe BSP KWR1 są profilami teowymi stosowanymi na łączeniu profili zaczepowych. Profile aluminiowe BSP KWR2 są natomiast profilami kątowymi stosowanymi jako profile wsporcze w środkowej części profili zaczepowych. Grubość nóżki profili wynosi 2 mm. Szerokość nóżki 70 mm zapewnia dużą sztywność profili umożliwiającą ich mocowanie w dużym rozstawie. Profile kątowe posiadają ściankę przednią o szerokości 50 mm. Profile teowe natomiast posiadają ściankę przednią o szerokości 120 mm, co zapewnia stosunkowo dużą regulację poziomą na łączeniu profili zaczepowych. Powierzchnia przednich ścianek profili jest ryflowana. Profile mocuje się do konsol za pomocą wkrętów samowiercących 4,8x19 A2.
Poziome profile zaczepowe BSP KWRW mają ścianki grubości 2 mm. Mocowane są do profili pionowych za pomocą wkrętów samowiercących 4,8x19 A2. Rozstaw pionowy profili powinien być zgodny z wytycznymi producenta okładziny.
4. ZACZEPY
Zaczepy BSP KWRW są produkowane z tego samego profilu o grubości 2 mm co poziome profile zaczepowe, lecz są one odwrócone o 180 stopni względem nich. Rozróżniamy zaczepy nośne o szerokości standardowej 120 mm – przenoszące pionowe obciążenia od ciężaru elewacji oraz poziome obciążenia od ssania i parcia wiatru – oraz zaczepy przesuwne o szerokości standardowej 60 mm – przenoszące wyłącznie obciążenia poziome. Dopuszcza się również stosowanie zaczepów o innych szerokościach wynikających z projektu. Zaczepy nośne zlokalizowane przy górnej krawędzi płyty są zaopatrzone w śruby regulacyjne M6. Wkręcając lub wykręcając śruby w gwintowanych otworach zaczepów reguluje się położenie panelu w pionie. Wysokość zaczepów umożliwia regulację pionową w zakresie 10 mm. Zaczepy mocuje się w płycie punktowo za pomocą kotew tylno-nacinających w rozstawie zgodnym z wytycznymi producenta okładziny.
5. OGÓLNE
Wszystkie elementy podkonstrukcji aluminiowej BSP charakteryzują się klasą trwałości B wg normy PN-EN 1999-1-1:2011 i mogą bez powłok ochronnych być stosowane w środowiskach o kategorii korozyjności atmosfery C1, C2 oraz C3 wg normy PN-EN ISO 12944-2:2001. Po przeprowadzeniu dodatkowego zabiegu ochronnego – anodowaniu – mogą być również stosowane w środowisku o kategorii korozyjności atmosfery C4 oraz C5. Aluminiowe elementy podkonstrukcji BSP są klasyfikowane w zakresie reakcji na ogień bez badań w klasie A1 wg normy PN-EN 13501-1+A1:2010 na podstawie decyzji Komisji Europejskiej nr 96/603/EC, 2000/605/EC oraz 2003/424/WE.
System BSP KWRW jest objęty Krajową Oceną Techniczną oraz Krajową Deklaracją Właściwości Użytkowych.
System ten powinien być montowany na podstawie projektu warsztatowego sporządzonego przez projektantów z odpowiednią wiedzą w dziedzinie konstrukcyjno-budowlanej. Układ podkonstrukcji oraz zagęszczenie elementów (wytrzymałość całego systemu) powinno być potwierdzone obliczeniami statycznymi sporządzonymi przez konstruktora z uprawnieniami w dziedzinie konstrukcyjno-budowlanej.
Typy paneli dostępne dla tego systemu:
- Beton architektoniczny
- Gres
- HPL
- Kamień
- Rockpanel
- Szkło
- Włókno-cement
Warianty produktu
Brak wyników dla podanych kryteriów
Zaczekaj, mamy tego więcej
REALIZACJE
METRO C7 STACJA MŁYNÓW - systemy BSP FTF, KCS i KWRW
METRO C7 STACJA MŁYNÓW - systemy BSP FTF, KCS i KWRW
MUZEUM SZTUKI WSPÓŁCZECNEJ MOCAK W WARSZAWIE - system BSP KWRW I KW
METRO C7 STACJA MŁYNÓW - systemy BSP FTF, KCS i KWRW
MUZEUM SZTUKI WSPÓŁCZECNEJ MOCAK W WARSZAWIE - system BSP KWRW I KW
GRANARIA GDAŃSK - system BSP KWRW
GRANARIA GDAŃSK - system BSP KWRW
METRO C7 STACJA MŁYNÓW - systemy BSP FTF, KCS i KWRW
METRO C7 STACJA MŁYNÓW - systemy BSP FTF, KCS i KWRW
GRANARIA GDAŃSK - system BSP KWRW
METRO C7 STACJA MŁYNÓW - systemy BSP FTF, KCS i KWRW
GRANARIA GDAŃSK - system BSP KWRW
GRANARIA GDAŃSK - system BSP KWRW
METRO C7 STACJA MŁYNÓW - systemy BSP FTF, KCS i KWRW
MUZEUM SZTUKI WSPÓŁCZECNEJ MOCAK W WARSZAWIE - system BSP KWRW I KW
GRANARIA GDAŃSK - system BSP KWRW
MUZEUM SZTUKI WSPÓŁCZECNEJ MOCAK W WARSZAWIE - system BSP KWRW I KW
MUZEUM SZTUKI WSPÓŁCZECNEJ MOCAK W WARSZAWIE - system BSP KWRW I KW
MUZEUM SZTUKI WSPÓŁCZECNEJ MOCAK W WARSZAWIE - system BSP KWRW I KW
DETALE TECHNICZNE
KONSOLA KW4 PAS
SYSTEM ZACZEPOWY PODKONSTRUKCJI DO ELEWACJI WENTYLOWANEJ KWRW
PROFIL KWR2
PROFIL KWR2 - PARAMETRY
PROFIL KWRW
KONSOLA BSP KW1 PAS
PROFIL BSP KWRW - parametry
PROFIL KWR1 - PARAMETRY
KONSOLA BSP KW1
PROFIL BSP KWR1
SYSTEM DO ELEWACJI WENTYLOWANEJ BSP KWRW







